▲双金大厦实景照片
01项目区位
区域核心位置 地标级城市展示面
济南双金大厦位于济南市历下区,CBD中心商务区核心位置。项目紧邻城市主干道经十路,项目主要为办公功能。从项目的区位来看,将成为整个中央商务区面向城市展示的标志性建筑之一。
▲卫星图
场地周边高楼林立,200米和280米的高楼鳞次栉比。从高度上讲,本案很难有优势,必须从其他方面突围。在重重的限制和前提条件下,最核心的难点就是,如何用最简洁的方式,做到木秀于林。
▲周边建筑分析
02建筑形体
蕴含山水文化造型 展现地域特质地标
作为历下区CBD对外展示的重要地标之一,整体方案设计灵感来源于济南这座城市的高山泉水。建筑形体对自然上水抽象提取,以水的柔美融合山的挺拔形成流畅而不失硬朗的整体形象。
泉抚山而落,幻云裳如波。济南的泉文化久负盛名,通过对泉水的柔和与喷薄等意向的抽象提取,形成了建筑的整体造型。
▲设计概念一
将济南的山水文化与城市相结合,泉水的柔和高山的挺拔融合形成最后的建筑方案。
▲设计概念二
建筑呈双子塔形式,一座180米,一座150米。
建筑的双塔犹如两座高山,相互依偎,相互凝视,温润有肌,与周边的建筑形成高低错落的城市天际线。
▲主要城市界面分析
▲沿城市干道实景图
03裙房亮点
清泉垂落深涧中 涟漪层层坠玉盘
裙房的设计是整个建筑的画龙点睛之笔。灵感来源于济南的泉水。提出了泉涌的概念,寓意泉落深涧中形成的涟漪。
▲裙房设计概念
中心裙房的泉涌设计结合双螺旋楼梯形成特色空间的同时,起到了消防疏散的作用。
▲裙房“涌泉”设计
为了提升主入口落客区的品质,同时呼应整体项目的立意,在双塔之间的灰空间,设计了“泉涌”的造型。既起到了支撑上端建筑体量的作用,也点了题。V型巨柱支撑下,三角形的玻璃幕墙,犹如泉水般向上翻腾,直至裙房的屋面,同时成为屋顶花园遮挡烈日的雕塑,空中俯瞰,就像是泉城的一朵精致的水花。
▲裙房“涌泉”实景图
04细节设计
精致的细节打造 技术与美学完美融合
幕墙的细节采用菱形的形式,取意波光粼粼的泉水,对水面璀璨波光进行几何学的提取,赋予表皮极具标志性的编织肌理效果。
▲幕墙设计
幕墙主要的菱形框架,两层一个,交接处的受力点位于层间梁位。开启扇为梯形,开启高度的设计同时保证人视点的舒适。
▲立面效果实景图
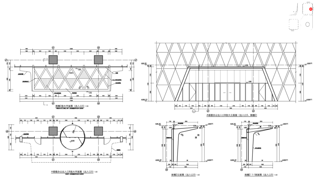
入口空间的雨棚设计也体现了一体化设计的初衷。雨棚的形式是立面菱形元素的延伸,整体造型简洁而不失优雅。
▲雨棚设计
北侧裙房采用不同颜色的石材干挂,通过富有韵律感的拼接和分缝设计形成更为活泼的近人立面效果。
▲北立面实景
南侧裙房与主塔楼的交接,凸显塔楼的拔地而起。干净利落,塔楼菱形元素和裙房的极简设计相得益彰,互相映衬。
▲南立面设计
抚山而落,幻云裳如波,与城市特质紧密结合的创作理念与空间打造,精益求精的细节推敲与设计,追求技术与技术的完美结合,双金大厦最终在济南历下中央商务区留下了属于华森原创的永恒印记,形成一道独树一帜的靓丽城市风景。

发表评论 取消回复