青岛信联天地
QingDao Xinlian Tiandi Project
前言
作为目前青岛市李沧区建成的第一高楼:青岛信联天地。位于青岛李沧区核心商圈,投入使用后,将构建全产业链数字经济平台,打造新时代区域产业标杆,成为青岛新旧动能转换的新引擎。面对产业的置入,如何平衡生态社区构建与产业发展是设计思考的出发点。
项目概况
项目位于青岛市李沧区,东依崂山山脉,西枕胶州湾,周边自然景观资源丰富,公共设施众多,形成了以北侧万达广场为中心的城市生活商圈,具有突出的核心区域优势。项目涵盖商务写字楼、精品LOFT、人才公寓、商业MALL、五星级酒店等多元业态,项目的建成将优化片区产业结构,实现产业升级,打造李沧区金融商务总部基地。
∆ 总平面图
为花园城市而生
20世纪90年代初,青岛李沧便开始了完整而有计划的城市更新,从最初的规划开始,李沧的城市发展策略便把城市环境与发展之间的再平衡放到了首要的位置,到2020年,李沧的绿化覆盖率已经达到了45%,人均公园绿地面积达16.6平方米,花园城市名副其实,在这样的背景下,“信联天地”项目开始分期实施,进一步顺应建设宜业宜居的创新型花园式中心城区,以此完善中心城区的多元复合功能结构。同时将交通,景观,物流,商业,清晰且巧妙的穿插在一起,融合成为宜居生态的典型社区,使都市特色鲜明的城市综合体向创新型花园式中心城市复合体转变。
∆ 项目与城市发展的平衡关系
山谷雨林的社区营造
信联天地项目在整体规划中提出 “山、谷、雨、林”自然构成“创新型花园中心城市”的设计理念,其主要目标是在东李城区建立一个合理、清晰、生动的空间结构,建筑,环境,景观等多维度的设计工作都围绕这一有机复合系统展开。
以“山+谷”为规划中心,信联天地项目从宏观上对现有城市功能进行有机的串联和修复;通过一条绿毯将迎宾广场、峡谷绿脉、健康花园等城市公共空间串联穿插其中,借此释放原本单一的地面交通导向功能,通过立体分层的交通体系链接地铁站点,达到强化场所空间凝聚力的目的。
∆ 项目与城市发展的平衡关系
微观上则将场地分解为若干个主题各异的社区场所,以“雨+林”的设计手法从城市的尺度着手探索创新型花园式中心城区的社区建构问题。当1400 平米的雨滴展厅、2100平米的螺旋下沉空间、200平方米的沉浸式下沉入口分别舒展的向中央绿谷方向延深的同时,社区的尺度关系被逐步分解。
∆ 项目与城市发展的平衡关系
设计师在主要街道两侧界定出有序的城市界面,保持城市生长、发展的秩序;同时在特定区域将人工建构与自然环境进一步融合,门户地段则置入富有变化的特色节点与建筑空间,最终在建筑形体与城市社区、生态绿谷之间构建出一种流动、共融的关系。这些空间序列在不同的尺度间流动,形成丰富的空间序列,如同游览丛林的开阔与山谷的险峻,这种穿越体验贯穿着从室内到室外的空间过渡,使场所不仅仅是水平空间组织,更是以多层次的地表系统的立体流动空间形态而存在。
高密度城市下的生态修复和城市修补策略
本项目周边多以封闭的高密度住宅小区为主,北侧为万达广场,场地特点为缺乏完整的公共空间与步行系统。这典型的反应出李沧目前的城市发展特点,居住密度大而公共产业配套较少,虽然产业的置入是李沧城市发展的迫切所需,但同时又是社区环境生态的矛盾对立点,如何达成两者之间的再平衡成为项目设计中的一个关键问题。在此背景下,设计师采取生态修复和城市修补的策略,以此来对应促进城市发展和改善人居环境之间所带来的挑战。
∆ 信联天地与城市社区的关系
设计通过商业内街、林荫大道、街角广场、穿越公建地块的步行系统等,将地块内主要公共场所连接成完整的开放空间体系,使人工景观与自然景观完美融合,并串联起不同功能地块,促进商圈一体化。
01.山谷绿脉
首先在城市尺度上,通过置入一个大尺度的“山谷绿脉”与现行城市绿化系统相互连通,以此成为整个城市的共享视觉通廊;其次引入多层次的下沉广场,进一步完善与区域周边的步行系统衔接,结合地铁,商业来逐步消解巨大尺度所带来的场所感缺失,同时结合丰富的公共配套形成一个多层次的社区型公共活动空间;最终以“城市绿毯”的形式,构成一个起伏的生态公园,对城市中割裂的公共空间进行城市生态再修复,将周边的地块的公共系统完整的串联起来,使“绿毯”融于“山谷”和“绿脉”之间,进一步达成城市性的系统修补,以立体步行街区激活整个城区。
∆ 螺旋式下沉空间
02.降低能耗
在建筑尺度上,通过一系列的被动式节能手段来改善建筑自身的通风质量和采光效率,例如塔楼部分通过横向连续的水平构造,横向线条,形成外遮阳;内部空间则以小进深为主导,达到南北方向自然通风;在局部区域设置通高中庭,通过烟囱拔风效应增加室内外空气的对流效率,减小整体建筑能耗,最终降低对周边环境的影响。
∆ 有序的建筑立面
使用被动式绿色建筑策略降低能耗。宏观上做到以建筑规模匹配城市配套,优化能源使用的管理系统,中观上以针灸的方式,大范围的使用建筑被动式节能设计,改善自身的能源消耗;微观上重视绿色建材,能源效率和再生能源的利用。以较小的经济代价,较低的能源消耗和较少的环境物质负担来满足建筑空间,实体和艺术的表达。
在地的技术实践
在“山、水、雨、林-创新型花园中心城市”的框架下,公共空间的各节点处置入了层层跌退的观景退台,开放性的互动广场,异质化的现代展厅,形成生动自然的形态,再结合绿谷花园以宽阔、自然、流动的峡谷空间呈现出令人惊叹的空间形态。
∆ 雨滴展厅
01.无柱雨滴展厅
以雨滴展厅为例,建筑师对立面与结构进行了系统的整合设计,创造出结构与形式一体的建筑空间系统。模数化和有理化的三角形单元,构成扇形三向网架结构线,再用纬向杆和斜向杆均分出基本参数单元,使各扇型区的斜杆平行,以此发挥出受力均匀,刚度优良的特点。这些空间网壳结合展厅中心位置的竖向交通核,充当建筑的主要结构体,以网状的形式从四周向内收缩,汇聚于核心筒顶部,在两者相互作用的情况下,实现了展厅的无柱结构体系。
∆ 雨滴展厅剖面图
02.会呼吸的幕墙
建筑幕墙系统则以自然呼吸原则为主要调节手段,结合遮阳,最大化的通过自然通风来获得室内新风,进行被动式降温。同时设置高性能节能幕墙系统,层间设置遮阳措施,有效减少太阳辐射得热,形成“被动”优先的幕墙策略来降低能耗。
∆ 有序的建筑立面
03.生态峡谷般的空间体系
在区域整合的处理上,深入考虑与周边地块的规划及现状协调;加强外部交通梳理与内部交通的衔接关系,地下空间避免了单一停车库的开发模式,进而使用复合多地面系统不断的加强地下组织功能与地面空间功能的互动关系,以此巧妙的处理与黑龙江路、巨峰路、南崂路的联系管理与互动引流问题,充分利用设计来调动地下空间的商业潜力,做到地上地下的交通网络,物流系统,使用效率的整合一体化;
∆ 建筑近地面和地下空间入口的关系
景观组织遵循多维度的地面空间系统,以“绿毯”公园, “山谷”建筑,多层退台和下沉广场一起构成一个多地面的立体景观,而流线型的景观肌理营造出丰富的穿越体验。整个绿谷长廊以极大的灵活性和包容性,将产业办公,精品LOFT人才公寓,商业MALL,五星级酒店等多元业态进行切分整合,最终打造出一个完整,连续,流动的生态峡谷般的空间体系。
∆ 信联的绿化覆盖率已经达到了45%
项目图纸
∆ 3-B2层地下平面图
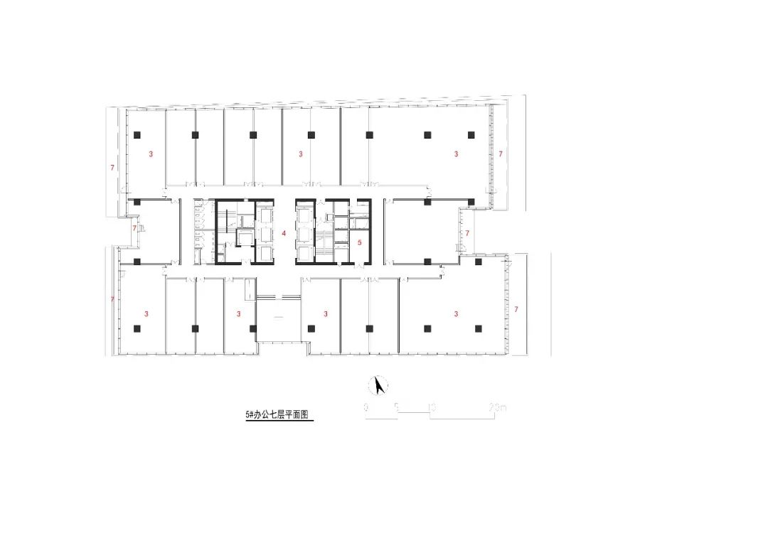
∆ 5号楼典型中区楼层平面图
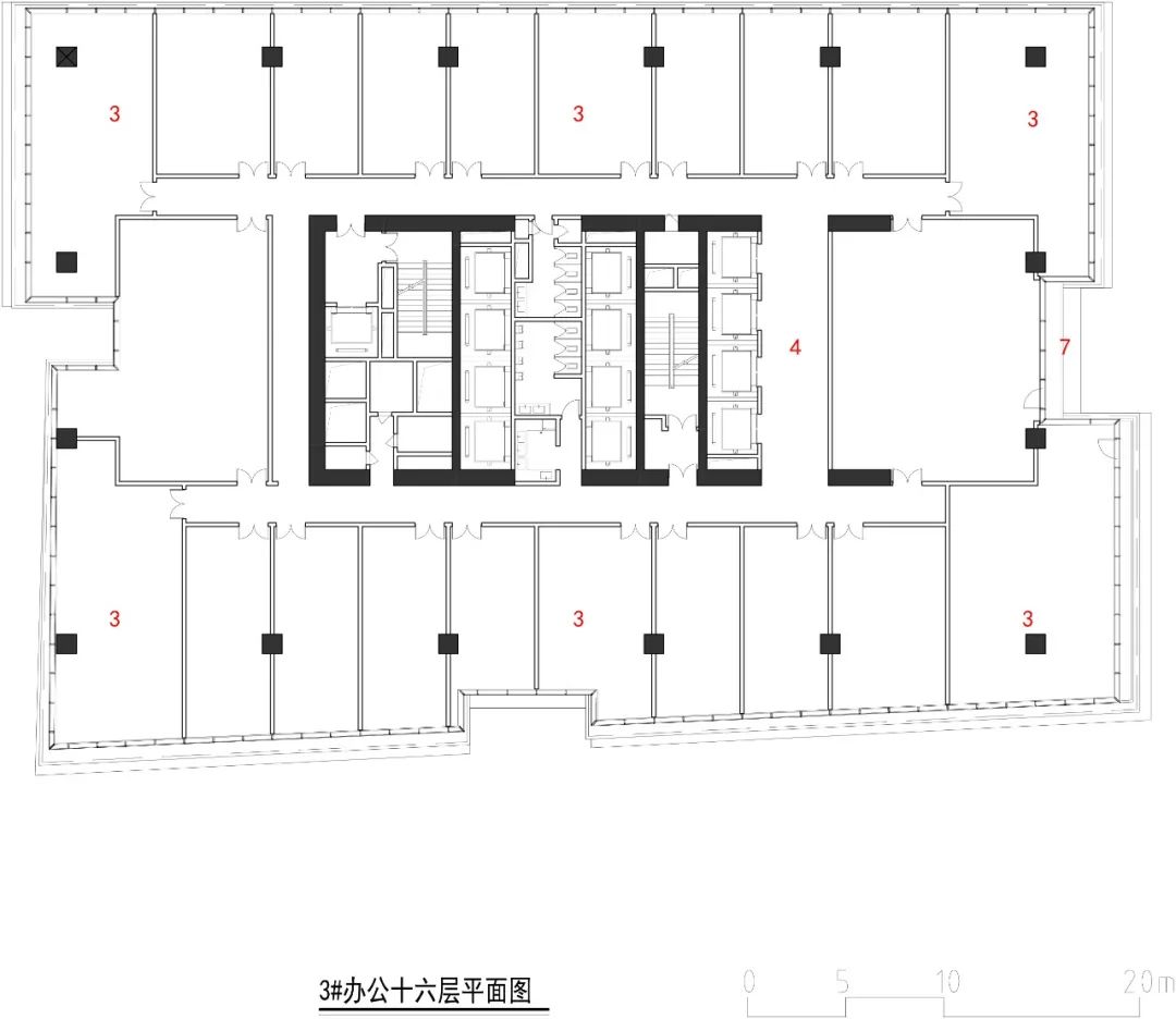
∆ 3号楼典型高区楼层平面图

发表评论 取消回复