▲扬州虹桥坊&迎宾馆
扬州虹桥坊
扬州虹桥坊位于扬州大虹桥路北侧,西邻瘦西湖,是瘦西湖风景名胜区的南大门。项目整体定位为瘦西湖文化休闲特色街区,是以历史人文为主题,集餐饮、休闲娱乐、零售、展示演出为一体的一站式、全天候、现代时尚休闲商业街区,是扬州市的旅游新名片。
▲大虹桥路街景
▲广场侧透视
整个项目为10栋单体围合而成的建筑群落,两层为主,局部三层。在总体上,10栋单体按照园林式布局组成了一个多动线漫游式商业街。其中一号楼、七号楼、十一号楼坐拥瘦西湖第一线湖景绝版资源,是扬州最高端餐饮设施和休闲会所。五号、六号、九号楼面向城市商业广场,将以国际品牌休闲餐饮为主,引进星巴克和哈根达斯的旗舰店作为休闲新地标。其他楼宇以城市休闲生活服务为主要业态,共同打造一个充满活力的城市商业街区。
▲7号楼街景
▲5号&6号楼夜景
▲9号楼立面
▲8号楼立面
▲新旧对比
在此项目上,设计师采用了一种折中的策略,能够尽量顾全各个群体对于项目的期望。我们将建筑的首层和二层分开处理:屋顶完全使用传统做法进行复原,二层以实木花窗和木板饰面为主,取传统风貌之精华;首层则采用石材幕墙做法,以大面积的展示橱窗应对现代商业的需求——首层是现代商业的载体,二层和屋顶是传统风貌的载体。从瘦西湖风景区内部还是从城市主干道上来看,由于树木的遮挡,可以观察到的主要是坡屋顶。进入到我们的商业街之中,才会发现现代简洁的立面与商业活动相得益彰。这种策略最大程度地综合了各种有利因素,既能符合传统风貌的要求,又具有现代商业的使用便利。
▲5号楼立面
▲立面图&剖面图
▲外摆区
▲节点图
项目信息
项目名称:扬州虹桥坊
项目地点:江苏扬州
建设业主:扬州瘦西湖旅游发展集团有限公司
竣工时间:2013年
建筑功能:商业街
建筑面积:27,000m²
建筑/景观设计:上海都设营造建筑设计事务所有限公司
建筑合作设计:江苏华发装饰有限公司
景观合作设计:扬州市建筑设计研究院有限公司
幕墙顾问:上海睿柏建筑外墙设计咨询有限公司
灯光顾问:上海格锐照明设计有限公司
摄影师:章勇
扬州迎宾馆会议中心及康体中心
荡舟廋西湖,泡个温泉,在趣园享受最顶级的淮扬美食,然后漫步长春路-----廋西湖片区在最近些年开始展现出独特的人文魅力,而这些都与扬州迎宾馆息息相关。本项目位于扬州迎宾馆片区最核心的区域,也是少有的新建大型公共建筑,它承载了扬州当代建筑对文化、历史、时代、环境、尺度等几大要素的回应。
▲会议中心西立面
▲平面图
▲剖面图
▲会议中心入口
▲大会议室
▲屋脊放大图
世界文化遗产旁、国宾馆,对这两个关键词的解读顺理成章的就是做成传统建筑摸样和周边的仿古建筑去呼应,四平八稳不犯错误。作为历史悠久的扬州迎宾馆的最后一个新建项目,如果因循守旧,必然是一个巨大的遗憾。建筑具有时代性是都设的一贯主张,在与整体协调的同时也要有建筑学上的创新,更要富有现代感。所幸得到了业主大力地支持,即使面对困难也没有妥协,最终实现了一个现代风格的“扬州建筑”。
▲宴会厅外廊
▲水院长廊
▲水院长廊
▲节点图
▲水院长廊庭院视角
都设在本项目中从建筑到室内一体化设计,设计师希望在传统的国宾馆氛围中塑造非传统的建筑和室内空间,同时兼顾与现有环境相融合。
▲入口门厅
▲大会议室
▲宴会厅
▲康体中心入口
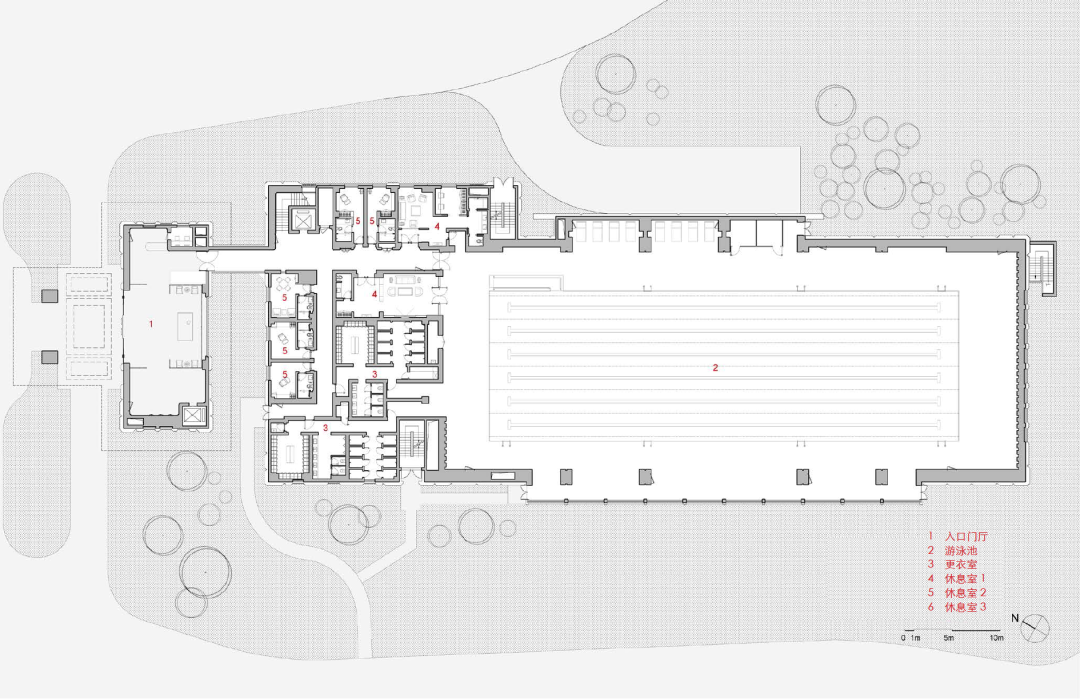
▲平面图
▲剖面图
▲墙影
▲健身中心后墙设计
▲健身中心后墙实景
▲门厅
▲接待
▲泳池

发表评论 取消回复