北京国际戏剧中心是北京人民艺术剧院扩建工程,位于东城区王府井大街北京人民艺术剧院内,现状首都剧场东侧,是一座集话剧演出、艺术创作、排练、展示、机房、停车等于一体的综合观演建筑。
北京国际戏剧中心的建成,使北京人艺又增添了两座新剧场,包括一座中型专业话剧剧场“曹禺剧场”,容纳约 700 名观众;一座“人艺小剧场”,容纳约 300 名观众。项目总建筑面积 2.3 万平方米,地上 3 层、地下 4 层,建筑最高处台塔高度为 25 米,结构形式为钢筋混凝土框架剪力墙结构。
新老剧场对比 © 陈向飞
坐落于老城中心的胡同里,设计需要利用紧凑的布局化解用地和功能需求的矛盾。项目布局为南北向,小剧场位于曹禺剧场后舞台的上方。外立面设计与“首都剧场”色彩相协调,采取简约大气现代风格。在剧场外复建了一座传统四合院,与周围环境相协调。
进入剧院,前厅富有视觉冲击力的玻璃砖墙展现在人们面前,玻璃砖的尺寸模仿了四合院的青砖尺寸。
以木色、灰砖色为主调的“曹禺剧场”,整个观众厅围合感好,尺度合宜,稳重、传统和亲切。观众厅由池座和两层楼座组成,内部多种表面凹凸造型与肌理,既提供了微扩散面的声学效果,又与后部深灰色凹凸不平错落有致的“灰砖”GRG 墙面一起,形成冷暖与深浅对比,契合北京传统民居四合院的设计元素。
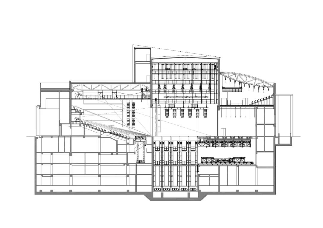
剖面图
黑灰色为主调的“人艺小剧场”是典型的黑匣子式小剧场。墙面分普通和微穿孔吸声两种表面处理方式,每块板材设计成楔形单元块随机排列,颜色从黑色到深浅不同的暖灰色。
北京国际戏剧中心项目落成后,于 2021 年 7 月进行了运行,观众反馈非常好。继承首都剧场优秀传统,本着和而不同精神,北京国际戏剧中心项目打造了具有时代特色的新型剧场,为王府井核心区又增添了一处重要的文化新地标。

发表评论 取消回复